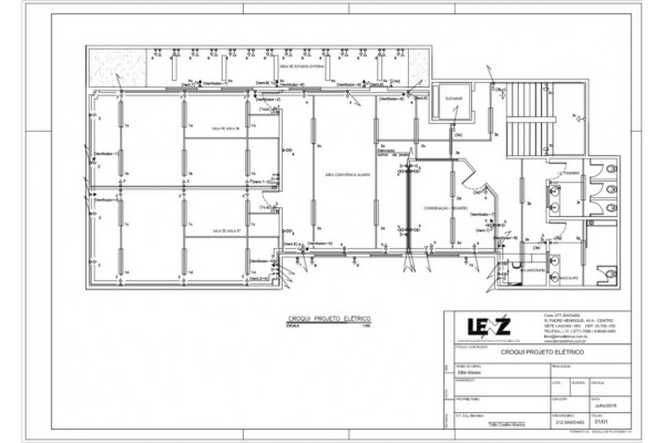
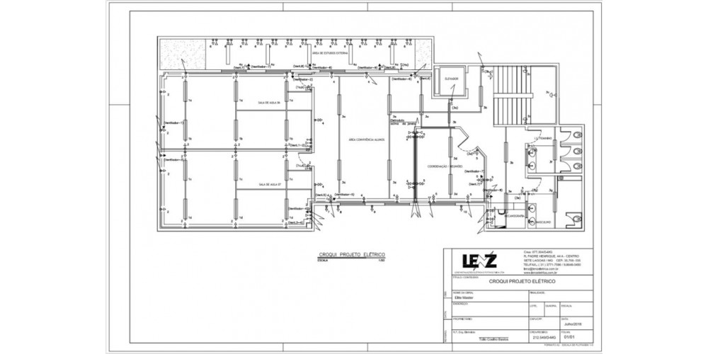
Desenvolvimento de projeto elétrico e de telecomunicação, montagem de infraestrutura para receber instalações elétricas, rede/dados e voz e execução de instalações elétricas de ampliação do Elite Master - Sistema de Ensino.
Desenvolvimento de projeto elétrico e de telecomunicação, montagem de infraestrutura para receber instalações elétricas, rede/dados e voz e execução de instalações elétricas de ampliação do Elite Master - Sistema de Ensino.
PROJETO E MONTAGEM DE INSTALAÇÕES TÉCNICAS - ELITE MASTER
PROJETO E MONTAGEM DE INSTALAÇÕES TÉCNICAS - ELITE MASTER | REF: 48921
Compartilhe nas Redes
Descrição
Desenvolvimento de projeto elétrico e de telecomunicação, montagem de infraestrutura para receber instalações elétricas, rede/dados e voz e execução de instalações elétricas de ampliação do Elite Master - Sistema de Ensino.
Desenvolvimento de projeto elétrico e de telecomunicação, montagem de infraestrutura para receber instalações elétricas, rede/dados e voz e execução de instalações elétricas de ampliação do Elite Master - Sistema de Ensino.
Desenvolvimento de projeto, homologação na Cemig e montagem de usina de energia solar fotovoltaica.Potência total do sistema 4,86 kWp12 Módulos fotovoltaicos de 405W3 Microinversores Apsystems - Tecnologia MLPE (Module Level Power Electronics), eletr..
Desenvolvimento de projeto, homologação na Cemig e montagem de usina de energia solar fotovoltaica.Potência total do sistema 22,44 kWp68 Módulos fotovoltaicos de 330W34 Otimizadores de potência Solar Edge2 Iinversores Solar Edge - Tecnologia MLPE (Mo..
Desenvolvimento de projeto, homologação na Cemig e montagem de usina de energia solar fotovoltaica.Potência total do sistema 6,80 kWp20 Módulos fotovoltaicos de 340W5 Microinversores 1200W - Tecnologia MLPE (Module Level Power Electronics), eletrônic..