portugues ingles

Fale com a gente 31 3771-7596 / 31 9 8648.0450

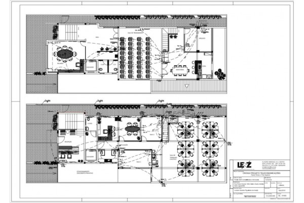
EXECUÇÃO DE INSTALAÇÕES ELÉTRICAS - EDIFÍCIO COMERCIAL - GDA CONTABILIDADE

Sete Lagoas
  • EXECUÇÃO DE INSTALAÇÕES ELÉTRICAS - EDIFÍCIO COMERCIAL - GDA CONTABILIDADE

Execução de instalações elétricas e de telecomunicação.

Estudo de análise de carga em agrupamento coletivo (Cemig).

Montagem de instalações técnicas para elevador comercial.


Compartilhe nas Redes


Alguns Trabalhos | Ver Todos



SISTEMA DE ENERGIA SOLAR FOTOVOLTAICA RESIDENCIAL 4,86 KWP

SISTEMA DE ENERGIA SOLAR FOTOVOLTAICA RESIDENCIAL 4,86 KWP

Desenvolvimento de projeto, homologação na Cemig e montagem de usina de energia solar fotovoltaica.Potência total do sistema 4,86 kWp12 Módulos fotovoltaicos de 405W3 Microinversores Apsystems - Tecnologia MLPE (Module Level Power Electronics), eletr..

SISTEMA FOTOVOLTAICA COMERCIAL 22,44 KWP

SISTEMA FOTOVOLTAICA COMERCIAL 22,44 KWP

Desenvolvimento de projeto, homologação na Cemig e montagem de usina de energia solar fotovoltaica.Potência total do sistema 22,44 kWp68 Módulos fotovoltaicos de 330W34 Otimizadores de potência Solar Edge2 Iinversores Solar Edge - Tecnologia MLPE (Mo..

SISTEMA DE ENERGIA SOLAR FOTOVOLTAICA 6,80 KWP

SISTEMA DE ENERGIA SOLAR FOTOVOLTAICA 6,80 KWP

Desenvolvimento de projeto, homologação na Cemig e montagem de usina de energia solar fotovoltaica.Potência total do sistema 6,80 kWp20 Módulos fotovoltaicos de 340W5 Microinversores 1200W - Tecnologia MLPE (Module Level Power Electronics), eletrônic..

LENZ Elétrica ® 2025 - CREA: 77.304/D | Todos os Direitos Reservados.